Najlepsza taktyka przeciwko Masztom Śmierci:
to demokracja bezpośrednia w gminie



Dla waszych wpisów i kontaktów księga i notes: "Przeciwko masztom telefonii komórkowej"



do strony głównej sprawy stacji Orange (France Telecom) w Kamieńcu Ząbkowickim


Jeśli masz komórkę to Ty finansujesz nowe stacje bazowe telefonii komórkowej, a z tym choroby i powolną śmierć nie tylko Tobie najbliższych osób.




Walcz z mafią telefonii komórkowej


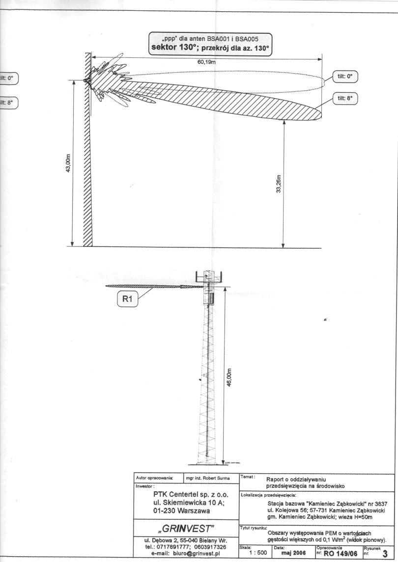
Obszary występowania PEM o wartościach gęstości większych od 0,1 W/m2 (widok pionowy) dla anten BSA 001, BSA003 i BSA005. Przekrój dla azymutu 130 Grad. Raport o oddziaływaniu przedsięwzięcia na środowisko nr RO 149/06/RONS rozbudowa stacji bazowej nr 3837/4325 "Kamieniec Ząbkowicki" PTK Centertel Orange (France Telecom) w Kamieńcu Ząbkowickim. EIRP "jest?" 15968 W (>100 W), Nr działki 301/26 AM 11, 57-731 Kamieniec Ząbkowicki, Kolejowa 56, autorem opracowania jest mgr inż. Robert Surma, mai 2006, Grinvest.



polskie teksty | Inicjatywa Demokracji bezpośredniej | choroba mikrofalowa